architecte d’intérieur

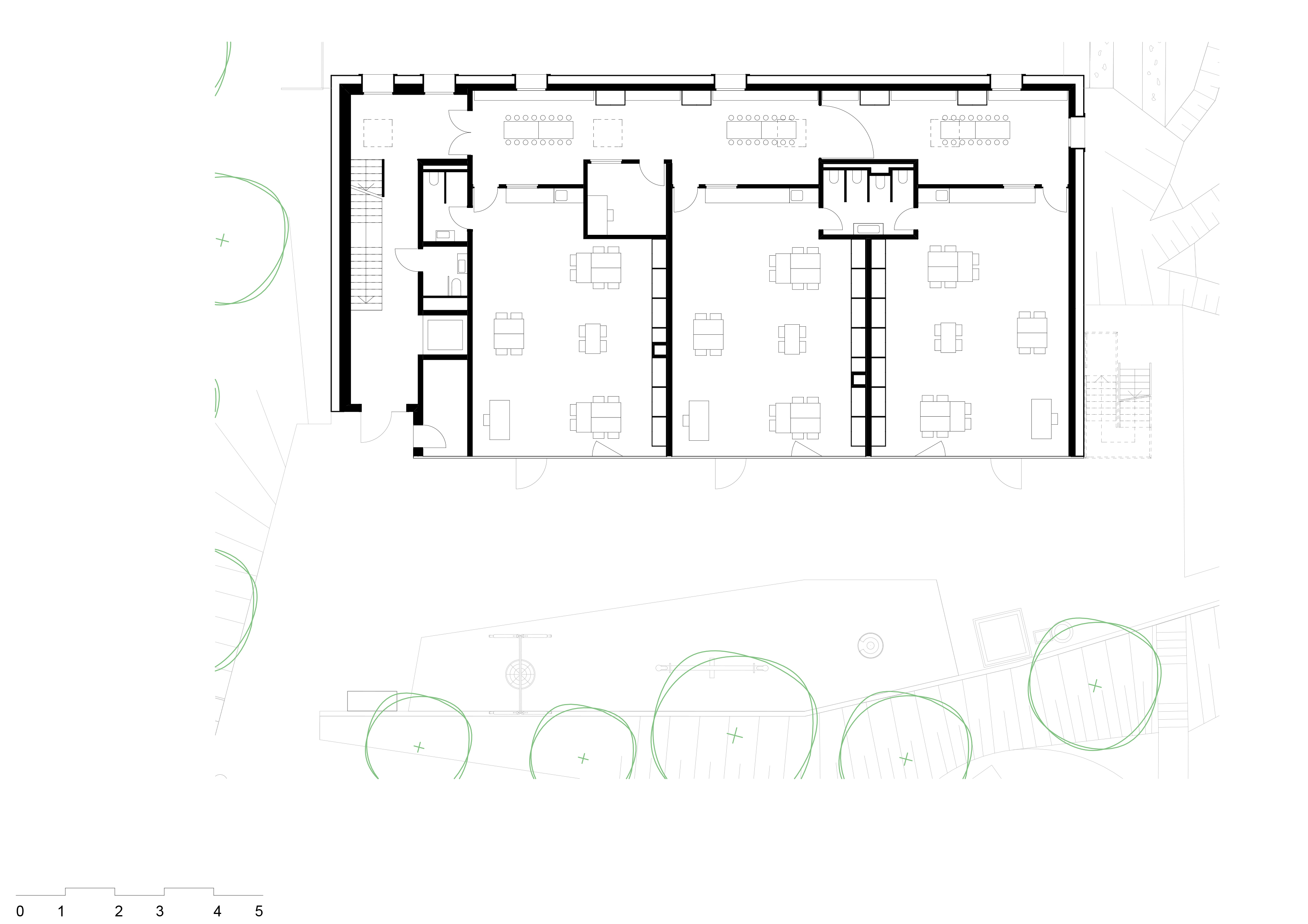
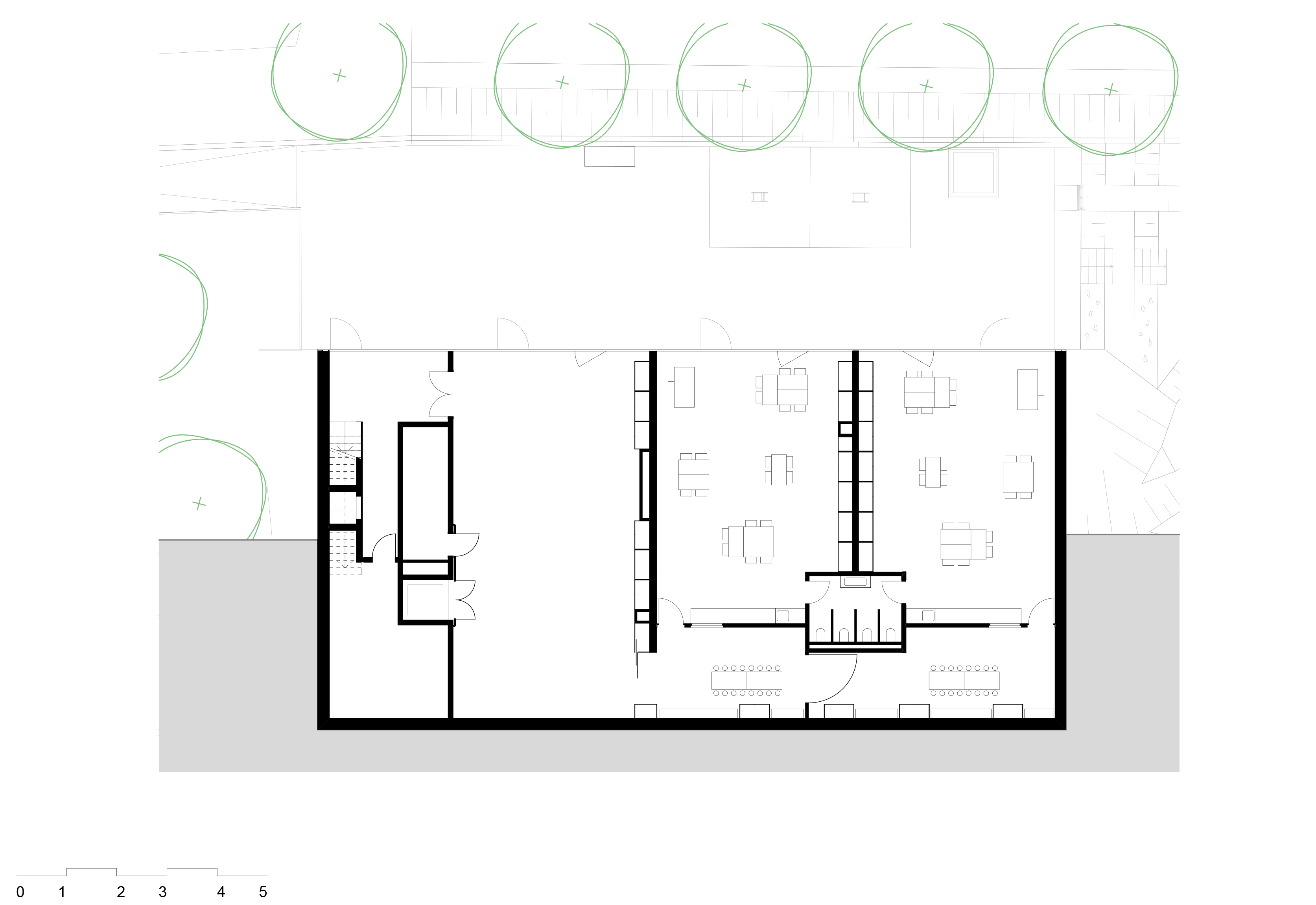
L’agrandissement de l’International School of Lausanne a augmenté la capacité de l’école de 620 à 990 élèves de 3 à 18 ans à la rentrée 2015. Découpé en 3 étapes, ce projet comprend notamment la réalisation d’une nouvelle structure d’accueil pour la petite enfance - inaugurée en août 2014 - d’une salle de spectacles de plus de 400 places, d’une bibliothèque et d’un réfectoire avec espace de repos.

Ces nouveaux aménagements, conçus et réalisés par CCHE, permettent à l’école d’étendre son offre de prestations et d’améliorer l’encadrement des élèves.



crédit : CCHE Lausanne SA